上高野三反田町
価格
4800万円
間取り
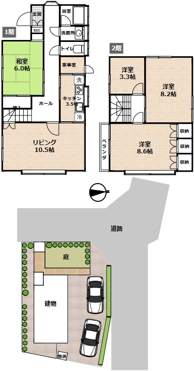
4LDK
建物面積
98.78㎡
土地面積
233.41㎡
築年月
1979年4月
京都府京都市左京区上高野三反田町
叡山電鉄叡山本線「三宅八幡駅」徒歩5分
京都市営地下鉄烏丸線「国際会館駅」徒歩15分
京都市営地下鉄烏丸線「国際会館駅」徒歩15分
物件概要
物件名
上高野三反田町
所在地
京都府京都市左京区上高野三反田町
価格
4800万円
交通
叡山電鉄叡山本線「三宅八幡駅」徒歩5分
京都市営地下鉄烏丸線「国際会館駅」徒歩15分
京都市営地下鉄烏丸線「国際会館駅」徒歩15分
築年月
1979年4月
間取り
4LDK
土地面積
233.41㎡
建物面積
98.78㎡
小学校区
上高野
中学校区
修学院
お部屋の特徴
バス・トイレ
キッチン
セキュリティ
設備
その他
用途地域
第一種低層住居専用地域
都市計画
市街化
駐車場
有
備考
他にも多数の物件を取り揃えております 。お気軽にお問い合わせください。












